Moderní bydlení, kde záleží na jednoduchosti, promyšlených detailech a každodenním komfortu
Oblíbená lokalita Praha 6 Suchdol
Bydlení v zeleni, u lesa a mimo městský ruch, ale zároveň snadno dostupné do centra Prahy pro vás i vaši rodinu
Velkorysý prostor

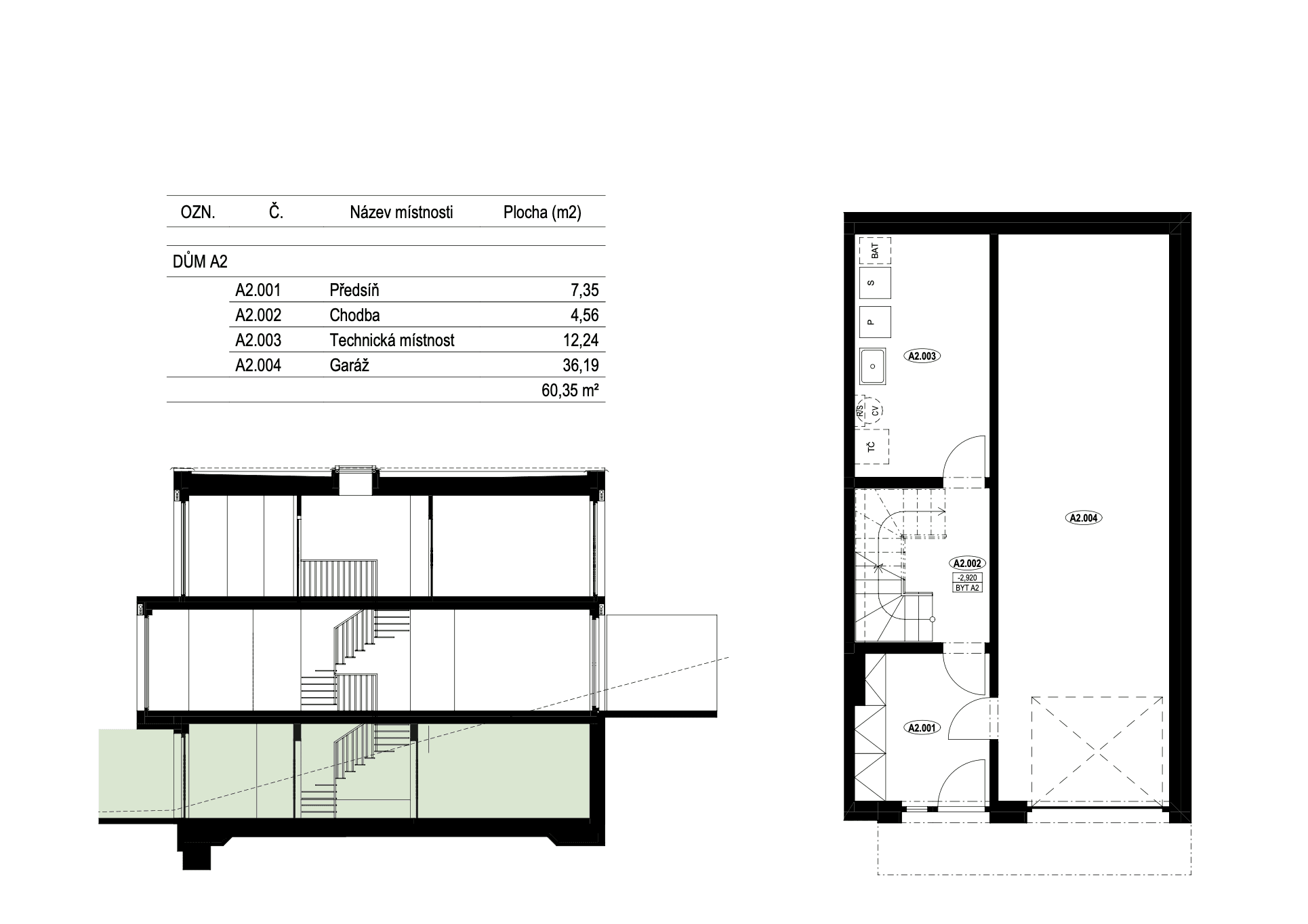
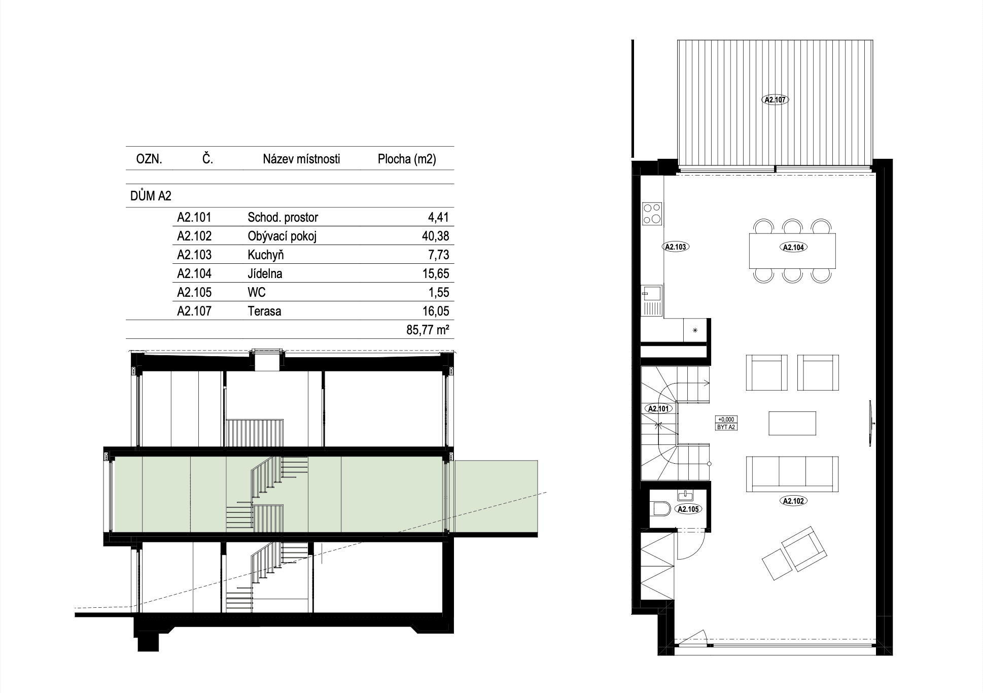
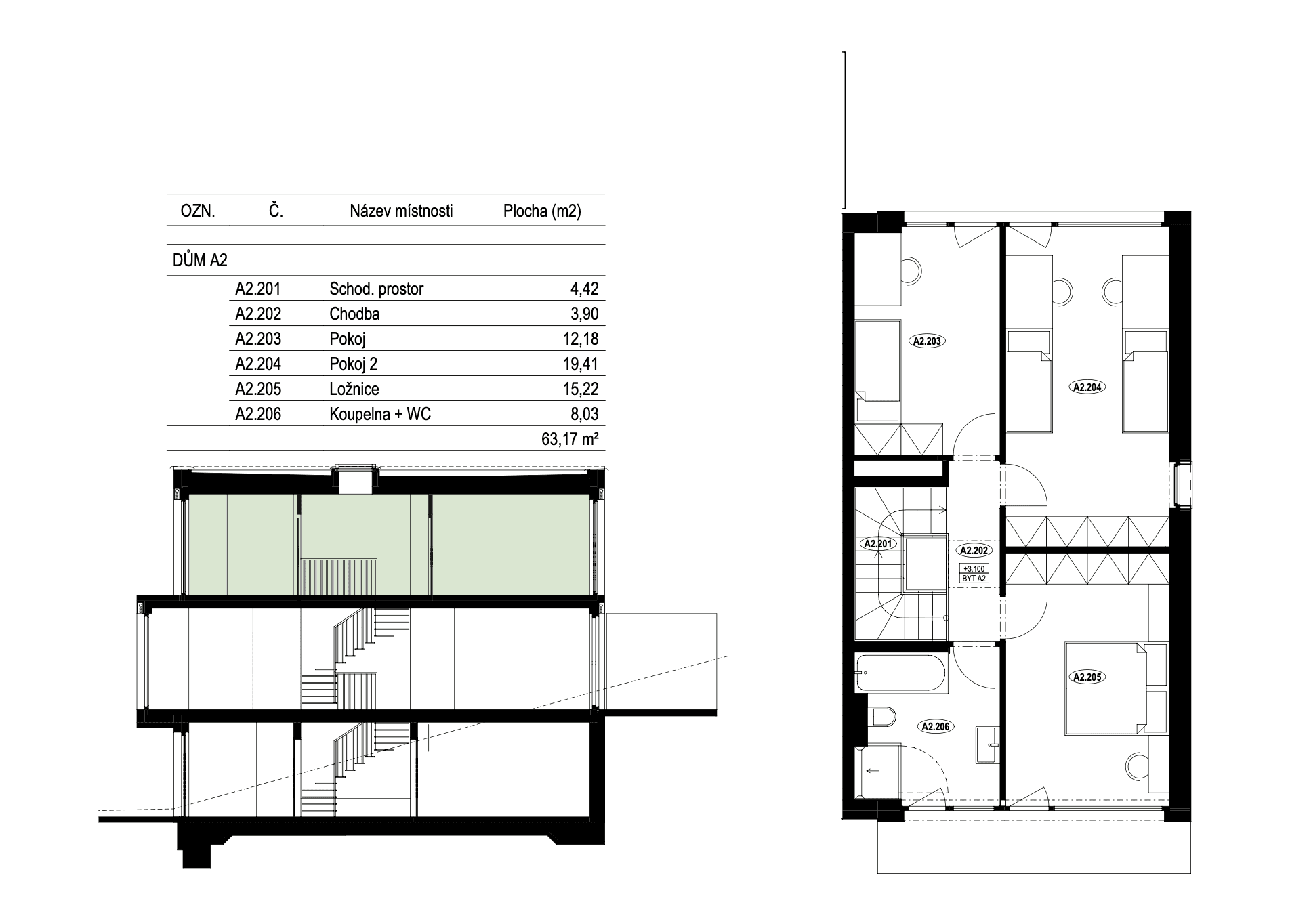
Dispozice 5+kk s užitnou plochou 193 m2 nabízí dostatek místa pro rodinu, práci nebo i soukromí. Tři podlaží jsou rozdělena tak, aby tvořila jednotlivé zóny, které se navzájem neruší.
Útulná terasa skrytá před zraky kolemjdoucích

Každý dům má vlastní terasu a zahradu se vstupem přímo z obývacího pokoje nebo kuchyně. Prostor pro každodenní život venku, ne jen víkendové chvíle.
Vysoký standard provedení
Klid, komfort a prostor vytvořený přesně pro vás. Dokončení ve standardu nebo na míru.
Promyšlené a praktické řešení
Velkorysá variabilní dispozice a promyšlené technické řešení minimalizující budoucí náklady na údržbu i provoz
Architektura s jasným rukopisem

Znáte v Praze místo kde si mohou hrát děti před domem?
Velkorysý prostor, který dává svobodu
Otevřený obytný prostor s přímým vstupem na terasu a zahradu přirozeně propojuje interiér s exteriérem.
Promyšlená investice bez skrytých podmínek
Vše důležité o ceně a průběhu projektu na jednom místě.
Cena domu činí 25 900 000 Kč včetně 12% DPH a zahrnuje pozemek, dům ve standardním provedení, kompletní povrchy v interiéru i exteriéru, koupelnové zařizovací předměty, finální terénní úpravy pozemku s travnatým povrchem. Záruka na dům je 2 roky.
V ceně nejsou zahrnuty individuální úpravy na přání klienta, kuchyňská linka, vybavení nábytkem a zařízení.
Platební podmínky:
▪ 100 tis. Kč rezervační záloha
▪ 20% po dokončení hrubé stavby, podpisu smlouvy o smlouvě budoucí kupní + případné individuální úpravy na přání,
▪ 80% (-100 tis. rezervace) po kolaudaci, podpis kupní smlouvy
▪ Veškeré zálohy jsou deponovány na jistotním účtu FIO banky, která je naším partnerem a zajišťuje financování projektu až do dokončení
Předběžný harmonogram
▪ 08/2025 zahájení stavby
▪ 06/2026 dokončení hrubé stavby
▪ 02/2027 dokončení stavby
▪ 03/2027 kolaudace
Standardy provedení interiéru budeme aktualizovat v průběhu dubna 2026.
Podívejte se na novinky ze stavby
Praktické informace
Shrnuli jsme odpovědi na otázky, které se nejčastěji objevují při výběru bydlení v projektu V Údolí. Pokud zde nenajdete, co hledáte, rádi vám vše vysvětlíme osobně.












